 |
 |
|
Willkommen:Bella Vista ist eine ökologische Ferienanlage mit Unterbringung und Tennisanlage neben dem Naturschutzgebiet Na Penyal oberhalb von Cala Millor auf Mallorca mit Photovoltaik- und Thermosolaranlagen. |
 |
 |
|
Die Ferienanlage Bella Vista bietet 3 Ferienhäuser für 2 bis 30 Personen und einen parkähnlichen Garten. Direkt nebenan gibt es ein Lokal mit Gartenterrasse, 5 Tennisplätze, einen Pool, einen Parkplatz. Hier kann man sich in exklusiver Lage erholen, Tennis spielen, Wandern, Schwimmen, Radfahren und im Panoramalokal bei einer herrlichen Aussicht entspannen. |
 |
|
|
|

|

|

|
|
Wohnzimmer mit Kamin (Wärmerückführung und doppelter Verbrennung), Sitzecke, Eßtisch und integrierter Küche
|
Das Chalet ist mit WLAN, Heizung, Klimaanlage, Waschmaschine, Geschirrspülmaschine, Warmwasserversorgung und Satelliten-TV eingerichtet. Die Strom- und Warmwasserversorgung wird mit Solarenergie (Photovoltaik und Thermosyfon) unterstützt.
|
Die Küche ist großzügig mit Geschirr, Kühlschrank, Geschirrspülmaschine, Kaffeemaschine, Mikrowelle, Induktionsherd usw. ausgestattet.
|
|
Aufgang zur Terrasse
|

|
Die Buchung erfolgt durch E-Mail mit Angabe der Daten: Name, Anschrift, Anzahl der Personen, Anreisetag, Abreistag, Anreisezeit, Abreisezeit.

|
|
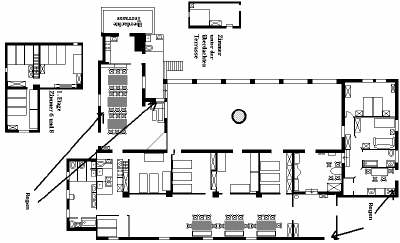
Grundriß Im Chalet können 6 Personen Urlaub machen. Zwei Schlafzimmer haben zwei Singelbetten, in dem dritten Schlafzimmer befinden sich drei Betten.
|
Das Leben findet im Freien auf den großen Terrassen statt
|
|
 |
|
|
|

|

|

|

|

|
|
Chalet Ostansicht
|
Stellplatz mit Schatten, Eingang zum Chalet
|
Weg zum Obstgarten und zum Landhaus
|
Blick von der Dachterrasse zum Pool
|
Blick aus dem Wohnzimmer
|
|
 |
|
|
|

|

|

|

|

|

|
|
Chalet Bad
|
Terrasse und Haustür
|
Aufgang zur Terrasse und zum Eingang
|
Tor zur Finca Bella Vista
|
Blick von der Dachterrasse
|
|
 |
|
|
|

|

|

|

|

|

|
|
Schlafzimmer Süd und Schlafzimmer Nord
|
Sitzecke
|
Kakteenpark
|
Weg zumChalet und zum Tennis
|
Pool
|
|
|
|
 |
|
|
|

|
|
Das Gästehaus hat zwei Schlafzimmer, ein Wohnzimmer mit Schlafsofa und Küche, Bad, Terrasse, Gartenterrasse, überdachter Terrasse, Klimaanlage mit Heizung, WLAN, Warmwasserversorgung und TV mit internationalen Sendern. Die Küche ist großzügig mit Geschirr, Spülmaschine, Kaffeemaschine, Mikrowelle usw. ausgestattet.
|
|
Die Strom- und Warmwasserversorgung wird mit Solarenergie (Photovoltaik und Thermosyfon) unterstützt.
|
|
|
 |
 |
|
Die Buchung erfolgt durch E-Mail mit Angabe der Daten: Name, Anschrift, Anzahl der Personen, Anreisetag, Abreistag, Anreisezeit, Abreisezeit.
|
|
 |
 |
|
Landhaus und Meerblick
|
 |
|
|
|

|
Früher war das Landhaus einmal eine Unterkunft für die Guardia Civil. Die Finca verdankt diesem Umstand die gute Lage, ca. 2 km zum Strand, Überblick über einen großen Küstenstreifen von Costa de los Pinos über Cala Millor bis S`Illot. Das Gelände neben der Finca ist heute Naturschutzgebiet. Bildergelerie
|

|
|
Eingangsbereich zum Landhaus
|
Die Buchung erfolgt durch E-Mail mit Angabe der Daten: Name, Anschrift, Anzahl der Personen, Anreisetag, Abreistag. Anreisezeit, Abreisezeit.
|
Blick vom Steinweg auf die Rückseite des Landhauses
|
|

|

|

|
|
Blick von der Sitzgruppe im Vorgarten
|
Ein schattiger Platz im Garten
|
Feier unter Palmen
|
|
 |
 |
|
Wohnung mit großem Kaminzimmer, Meerblick
|
 |
|
|
|

|

|

|
|
Kaminecke im großen Kaminzimmer
|
Alte Küche mit Esse
|
Kleine Terrasse
|
|

|
Die Wohnung ist um den großen Saal (mit Bänken, Stühlen und Tischen, Tischtennisplatte) zu vergrößern, so daß bis zu 22 Personen hier untergebracht werden können.Sie hat bis zu 7 Schlafzimmer, 6 Toiletten, 5 Duschen, 2 Küchen, Sat.TV, 2 Kllimaanlagen, Waschmaschine, Mikrowelle, Geschirrspülmaschine, WLAN usw. Die Strom- und Warmwasser -versorgung wird mit Solarenergie (Photovoltaik und Thermosyfon) unterstützt. Die Wohnung Meerblick wurde gerade saniert. Es liegen noch keine Bilder vor.
|
Die Wohnung hat ein großes Wohnzimmer mit Kamin, eine überdachte Terrasse, zwei Schlafzimmer, eine alte Küche, die neben dem Gasherd auch noch den alten gußeisernen Herd enthält und ein Duschbad.  |
|
Im Wohnzimmer wurde eine Tafel für 25 Personen eingedeckt
|

|
Grundriß

|
|

|

|

|
|
 |
|
|
|
Zimmer am großen Saal
|
großer Saal mit 50 Sitzplätzen und Tischtennisplatte
|
|
 |
 |
|
Anfahrt und Lage Wegbeschreibung von Palma Flughafen (ca 70 km): Am besten folgt man der guten Ausschilderung nach Manacor (C715), folgt der C715 weiter in Richtung Arta und Son Servera. Der Weg nach Son Servera geht dann über einen Abzweig (PM-403). In Son Servera biegt man ab in Richtung Cala Millor. Nachdem man durch Son Servera gefahren ist, fährt man am Kreisverkehr in Richtung Porto Christo. Auf der linken Seite sieht man nun schon die Skyline von Cala Millor. Nach wenigen Minuten liegt das Aparthotel Monte Safari ebenfalls auf der linken Seite. Genau gegenüber geht es rechts zur Anlage Tennis Bella Vista. An diesem Abzweig steht auch ein entsprechendes und meist beleuchtetes Schild. Folgt man der Ausschilderung, dann fährt man einen Hügel hinauf und nach einer scharfen Rechtskurve zuerst an dem größeren Landhaus und dann an dem Chalet vorbei. Am Parkplatz vor dem Restaurant der Tennisanlage endet dann die Straße. Das Gästehaus befindet sich im Gelände der Finca unterhalb des Chalet. Wer nachts ankommt, sollte eine Taschenlampe mitbringen. Lage: Das Gelände oberhalb von Bella Vista ist ländlich und überwiegend Landschaftsschutzgebiet. Die Entfernung zum nächsten Supermarkt beträgt ca 1,5 km, zum Strand und zur geschäftigen Fußgängerzone von Cala Millor ca 2 km, zum Hafen Cala Bona ca 4 km, zum Golfplatz ca 6 km. Mit dem Rad kauft man am bequemsten in Son Servea ein, wenn man den Via Verde (ohne große Steigungen) benutzt. Das Landhaus eignet sich besonders für Urlaub von Gruppen und befreundete Familien. Die Beherbergung von ca. 30 Personen ist möglich.
|
 |
 |
|
Preise
|
 |
 |
 |
 |
 |
 |
 |
 |
 |
|
Preise für Wohnung im Landhaus, Chalet und Gästehaus: 80 € pro Nacht Preise für Übernachtung ( bis 4 Personen und Mindestaufentshaltdauer von 5 Nächten), bei größeren Gruppen bitte anfragen, Nebenkosten: 15 €/ Garnitur Bettwäsche, 65 € für Endreinigung. Einzelzimmer: 25 € /Nacht + Nebenkosten von 25 €; Mehrbettzimmer 30 €/ Nacht und 2 Personen + Nebenkosten von 20 €/Pers.)
|
|
|
Informationen zu den Ferienhäusern
|
|
|
|
Die Finca Bella Vista befindet sich am Hang der Erhebung Na Penyal oberhalb von Cala Millor. Cala Millor ist bekannt wegen seines herrlichen Sandstrandes. Auf dem Gelände der Finca befinden sich das Landhaus, das Chalet, das Gästehaus, die Wohnung Meerblick, 5 Tennisplätze, das Restaurant mit Gästeterrasse und Meerblick, ein Pool mit Umkleideräumen und Poolterrasse, ein parkähnlichen Garten mit einer Plantage, ein alter tiefer Brunnen und ein Parkplatz. Im Landhaus gibt es 3 Wohnungen, einen großen Saal mit 5 Zimmern und sanitäre Anlagen.Die Zeit ohne Gäste ( Corona ) wurde genutzt, um die Finca mit erneuerbarer Energie zu versorgen. Es wurden Photosolaranlagen und Thermosyphonanlagen zur Strom- und Warmwasser- versorgung eingebaut.
Der Garten: Die Auffahrt ist mit großen schattenspendenden Pinien bepflanzt. Verschiedene Kakteen verschönern den etwas verwilderten Steingarten. Der größte Teil des Gartens ist mit Zitronenbäumen bepflanzt, weitere Bäume (Äpfel, Mispeln, Wein, Bananen, Oliven, Mandeln, Pflaumen, Quitten, Granatapfel, Feigen, Nektarinen, Pfirsiche, Orangen, Mandarinen, Pampelmusen) sind über das Grundstück verteilt. Die Benutzung des Pools ist für Gäste der Finca Bella Vista kostenlos.
Sonstiges: Die Endreinigung wird kostendeckend abgerechnet. Die Benutzung der Bettwäsche erfolgt gegen verursachungsgerechte Kostenbeteiligung pro Garnitur. Der Hausschlüssel wird nach Abschluß einer Nutzungsvereinbarung zugeschickt, bzw. vom Verwalter und Pächter des Panoramalokals ausgegeben.
Unser Techniker Mohammed und Edrinah, unsere Hausdame, die in der Ferienanlage wohnen, helfen bei allen auftretenden Schwierigkeiten. Sie sind mit 0034-602832593 und 0034-643 05 10 99 zu erreichen, kennen sich mit technischen Problemen aus und helfen umgehend: Sonstige Ausküfte erhält man im Panoramalokal und unter 0034 971 831519 sowie 00491725154567
Für den Flughafentransfer und Besorgungen ist die Anmietung eines Autos sinnvoll. Der Transfer Flughafen - Cala Millor erfolgt mit dem Lienebus (https://www.tib.org/documents/30683/145821/LA42%2C%20des%20de%202017.0 6.01.pdf) und auch durch diverse Transfer-Service-Unternehmen, die das naheliegende Hotel Monte Safari anfahren und online buchbar sind . z.B. : https://www.autocareslevante.com. ( mit dem Bus 15 bis 28 € pro Fahrt und Person)
Die Belegung der Ferienhäuser und die Preise für die Übernachtungen gestalten sich so, daß Bella Vista gepflegt und erhalten werden kann. Die Einrichtungen dienen der Erholung der Familien der Eigentümer, der Freunde und Tennisspieler. Für die Häuser und die Wohnungen werden Erstattungskosten von 80€ pro Nacht ( bis 4 Personen und Mindestaufenthaltszeit von 5 Tagen) erhoben. Hinzu kommen die Nebenkosten.
|
|
|
|
Belegungsplan bitte anfragen
|
|
|
|
|